家づくり
家事を効率化する間取り!ファミリークロークで叶える収納と動線の工夫
毎日の家事や片付けで、
「もっと効率よくできたらいいのに…」
と思ったことはありませんか?
実は 収納の考え方を少し変えるだけ で、驚くほど家事がラクになる方法があるんです。
今回ご紹介するのは、今注目されている「ファミリークローク」という新しいスタイル。
◆ファミリークロークとは?
従来の間取りでは、各部屋にクローゼットや収納を設けるのが一般的でした。
でも実際には——
- 子ども部屋まで服を片付けに行くのが面倒
- 家族の衣類があちこちに散らかる
- どこに何があるか分からなくなる
…といったストレスを感じていた方も多いのではないでしょうか。
ファミリークロークは、家族全員分の衣類や日用品を1カ所にまとめて収納する空間。
つまり「家の中の収納を一極集中させる」新しい発想です。
◆家事がスムーズになる理由
収納を1カ所に集めることで、家事の流れがぐっと効率的になります。
- 「洗う → 乾かす → しまう」が1カ所で完結
- 家族が自然に片付ける習慣が身につく
- 衣類や持ち物の管理がしやすい
結果として、片付けや探し物にかける時間が減り、家事全体がスムーズになるのです。
◆便利な生活導線
さらに魅力的なのが、 玄関からファミリークロークを通ってリビングに入れる動線設計。
外から帰ってきたら、
- 上着を掛ける
- バッグを置く
- 学校や仕事の道具を収納
これらが玄関から数歩で完結。
荷物をリビングに持ち込まずに済むので、リビングはいつもスッキリした状態を保てます。
「片付けて!」と家族に声をかける回数も、きっと減るはずです。
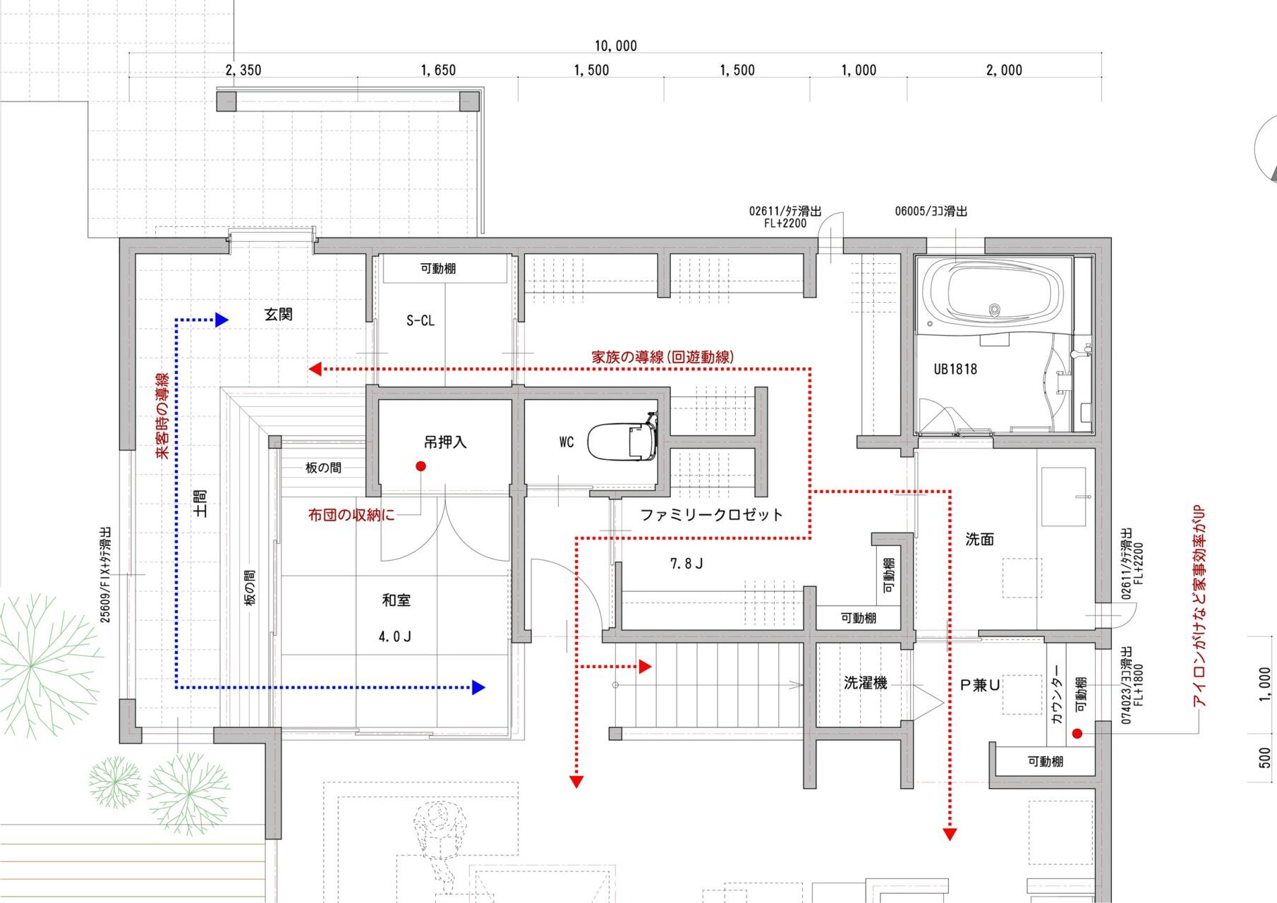
◆実際の間取りイメージ
言葉だけではイメージしにくい方のために、実際の間取り例をご紹介します。
▼クリックで拡大できます
こちらのプランでは、玄関からすぐにファミリークロークへアクセスできる動線 を採用しています。
- 帰宅したらすぐに上着やバッグをクロークへ収納
- そのままリビングへ入れるスムーズな流れ
- 洗面や浴室にも近いので、着替え・入浴・洗濯が効率的
さらに、ファミリークロークを通り抜けることで 家の中をぐるっと回遊できる動線 になっているのも大きなポイント。
「家事をする人」「片付ける人」「帰宅した家族」が自然に同じ場所を通るので、生活の無駄がぐっと減ります。
◆奥様にとっての大きなメリット
日々の家事や片付けを担う奥様にとって、ファミリークロークは 時間と心のゆとりを生む空間。
- 洗濯物を各部屋に配る手間がなくなる
- 家族が自分で出し入れできる仕組みになる
- リビングが散らからないから気持ちよく過ごせる
こうした積み重ねが「時短」と「家族の笑顔」につながっていきます。
◆まとめ
収納は単なる「モノをしまう場所」ではなく、
家事をラクにし、暮らしを快適にする仕組み でもあります。
もし新築やリフォームを検討されているなら、
ぜひ「ファミリークローク」という選択肢を取り入れてみてください。
毎日の家事がぐっと楽になり、住まいがもっと好きになるはずです。
